Розділ перебуває
на стадії розробки
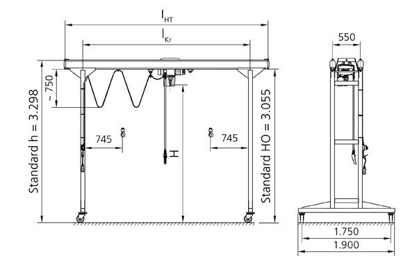
Мобільні робочі місця – гнучкість у вантажопідйомності
Портальні крани Demag KBK — це універсальне рішення для підйому та переміщення вантажів у виробничих цехах, складських приміщеннях і на відкритих майданчиках, де встановлення стаціонарної кранової системи є складним або недоцільним. Вони входять до лінійки кранових систем Demag KBK і відзначаються мобільністю, простотою використання та гнучкістю застосування в різних умовах експлуатації.
Завдяки конструкції, що переміщується по рівній підлозі, портальні крани Demag KBK легко маневрують у будь-якому напрямку та можуть швидко переміщуватися між робочими зонами. Це робить їх ідеальним рішенням для виконання вантажно-розвантажувальних операцій, а також для ремонтних і монтажних робіт. Вони дозволяють ефективно обслуговувати різні ділянки виробництва без необхідності встановлення постійного кранового обладнання.
Портальний кран Demag KBK має вантажопідйомність до 3200 кг, що забезпечує можливість роботи з широким спектром вантажів. Регульований проліт кранової балки дозволяє адаптувати конструкцію під конкретні задачі та особливості робочого простору. Завдяки цьому кранові системи Demag KBK забезпечують високу універсальність і можуть використовуватися у різних галузях промисловості.
Надійна конструкція, простота монтажу та зручність експлуатації роблять портальні крани Demag KBK оптимальним вибором для підприємств, яким потрібне мобільне та ефективне рішення для підйому і транспортування вантажів. Вони дозволяють підвищити продуктивність роботи, оптимізувати логістичні процеси та забезпечити безпечне виконання виробничих операцій.
Переваги портальних кранів Demag KBK
- Вантажопідйомність до 3 200 кг: це верхня межа для стандартних модульних систем KBK, що дозволяє працювати з важкими вузлами
- Регульований проліт балки: гнучкість у налаштуванні прольоту дозволяє адаптувати кран під конкретне приміщення або задачу
- Сфери застосування: оптимально підходять для ремонтних та монтажних робіт
Портальні крани Demag KBK
Матеріали для завантаження
Брошура портальних кранів Demag KBK та D-IVP
завантажитиТехнічні характеристики:

Однобалковий повнопортальний кран Demag EVP-KBK

Однобалковий повнопортальний кран Demag D-IVP












